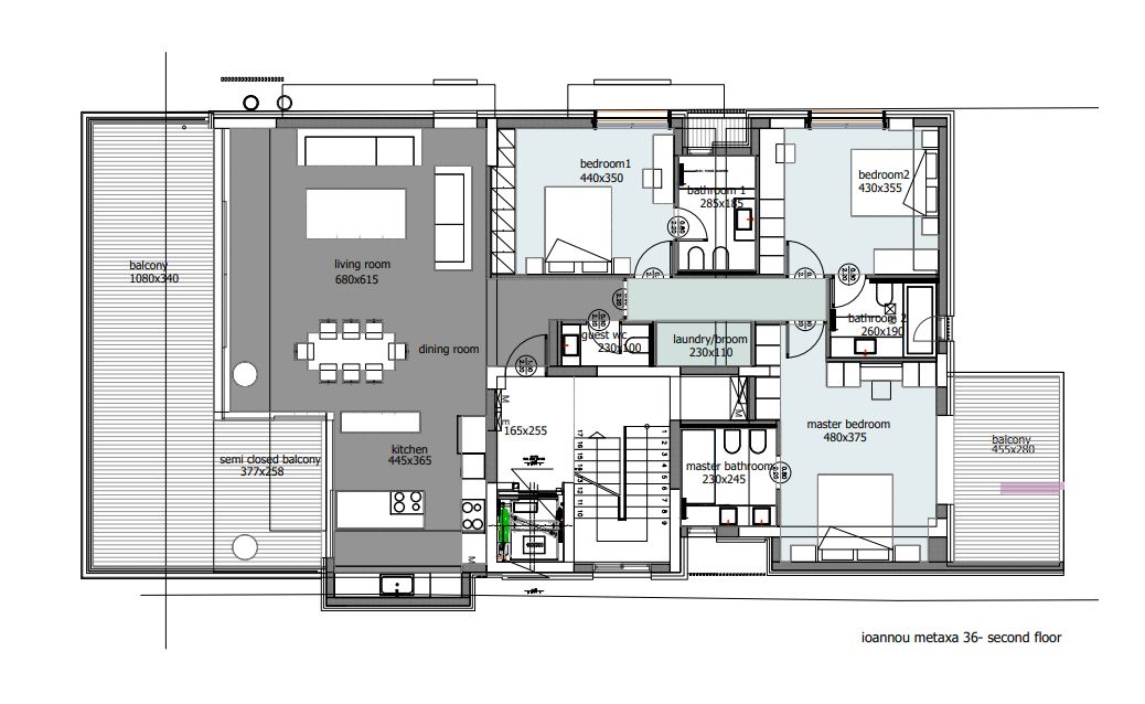
Ιωάννη Μεταξά 36

Περιοχή: Βούλα

Έργο:

Ιδιωτική κατοικία

Έναρξη: 14/12/2020

Περατωση: 01/10/2022

Φωτογραφίες